Rohrleitungsdesign Intelligente Strukturierung von Rohrleitungen
Aucotec hat für sein prozesstechnisch geprägtes Software-System Engineering Base (EB) Instrumentation eine neue Funktion entwickelt, die die im R&I definierten Rohrleitungen „schlauer“ macht.
Anbieter zum Thema

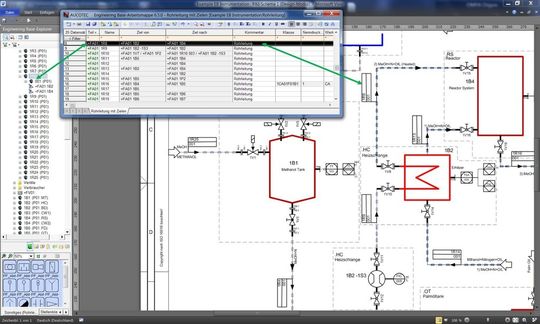
So lässt sich mit der neuen Version EB 6.5.0 die Rohrleitungsdarstellung ergänzen mit Informationen zur Fließrichtung, den Medien, Temperaturen und Drücken. Die automatisierte Zielverfolgung zeigt sowohl Anfang und Ende der Rohrleitung als auch die Topologie aller Untersegmente mit sämtlichen angeschlossenen Komponenten wie Ventilen, Pumpen, Klappen oder Flanschen. Aus der Fließrichtung ergibt sich die Reihenfolge der Geräte, die für Leitungsbauer und die 3D-Anbindung wichtig ist. Die Topologie-Informationen bilden die Basis für die spätere isometrische Darstellung, die aus einem R&I nie vollständig ableitbar sind.
Jedes Teilsegment einer Rohrleitung weiß, zu welcher Hauptleitung es gehört, welche Geräte Anfang und Ende markieren und welche Untersegmente noch dazugehören. Zusätzlich zeigt EB automatisch die normgerechte Darstellung der Verbindungstypen für die Rohrleitungen an, die in der Regel durch das Medium mitbestimmt wird. Mit dieser Ausbaustufe der CAE-Plattform EB hat Aucotec den Grundstein gelegt für die Unterstützung eines Rohrklassen-basierten Workflows. Damit wird künftig eine deutlich verbesserte Material-Auswahl auf Basis der im System hinterlegten, genormten und geprüften Rohrklassen ermöglicht. Engineering Base unterstützt dann alle nationalen und internationalen Standards sowie individuelle Hausnormen. (qui)
(ID:43014579)